Skip to main content

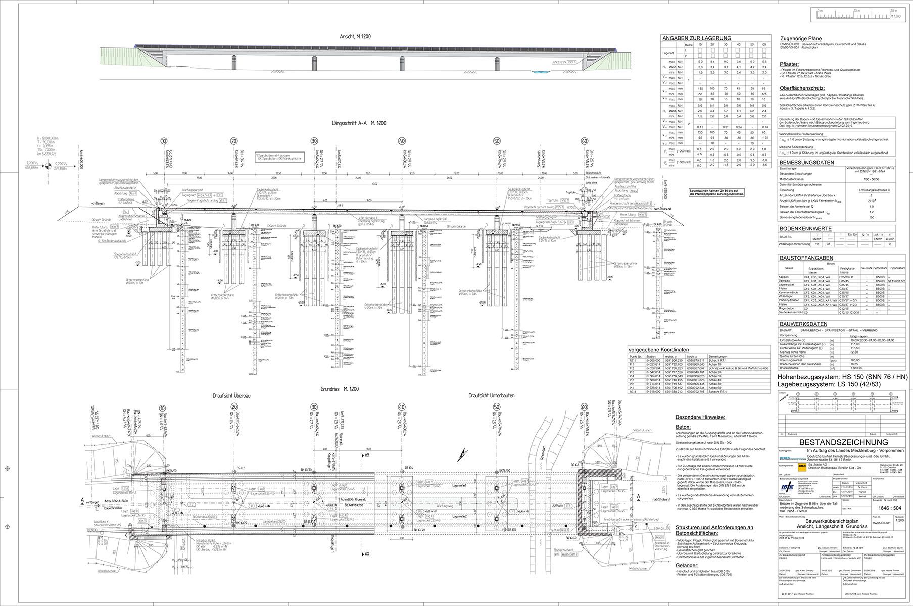
Spannbetonbrücke über die Talniederung des Sehrowbaches im Zuge der B96n


Das Unternehmen IBK MV GmbH

Die IBK MV GmbH ist seit 1995 auf den Fachgebieten des Verkehrswege- und Tiefbaus, des Konstruktiven Ingenieur- und Hochbaus sowie des Bau- und Projektmanagements erfolgreich tätig. Wir stehen für gestalterisch und qualitativ hochwertige sowie funktionale Lösungen - aber auch für Planung nach Augenmaß.

Kontakt Rostock
Büro Rostock

Gerhart-Hauptmann-Str. 23
18055 Rostock
038112186290
Diese E-Mail-Adresse ist vor Spambots geschützt! Zur Anzeige muss JavaScript eingeschaltet sein.

Kontakt Stralsund
Sitz der Gesellschaft
(Hauptniederlassung):

Platz des Friedens 28
18437 Stralsund
03831311135
Diese E-Mail-Adresse ist vor Spambots geschützt! Zur Anzeige muss JavaScript eingeschaltet sein.
© IBK MV GMBH. Entwickelt durch SNDG.Media.